Leave a Message

Thank you for your message. We will be in touch with you shortly.

Explore Our Properties

Property Description

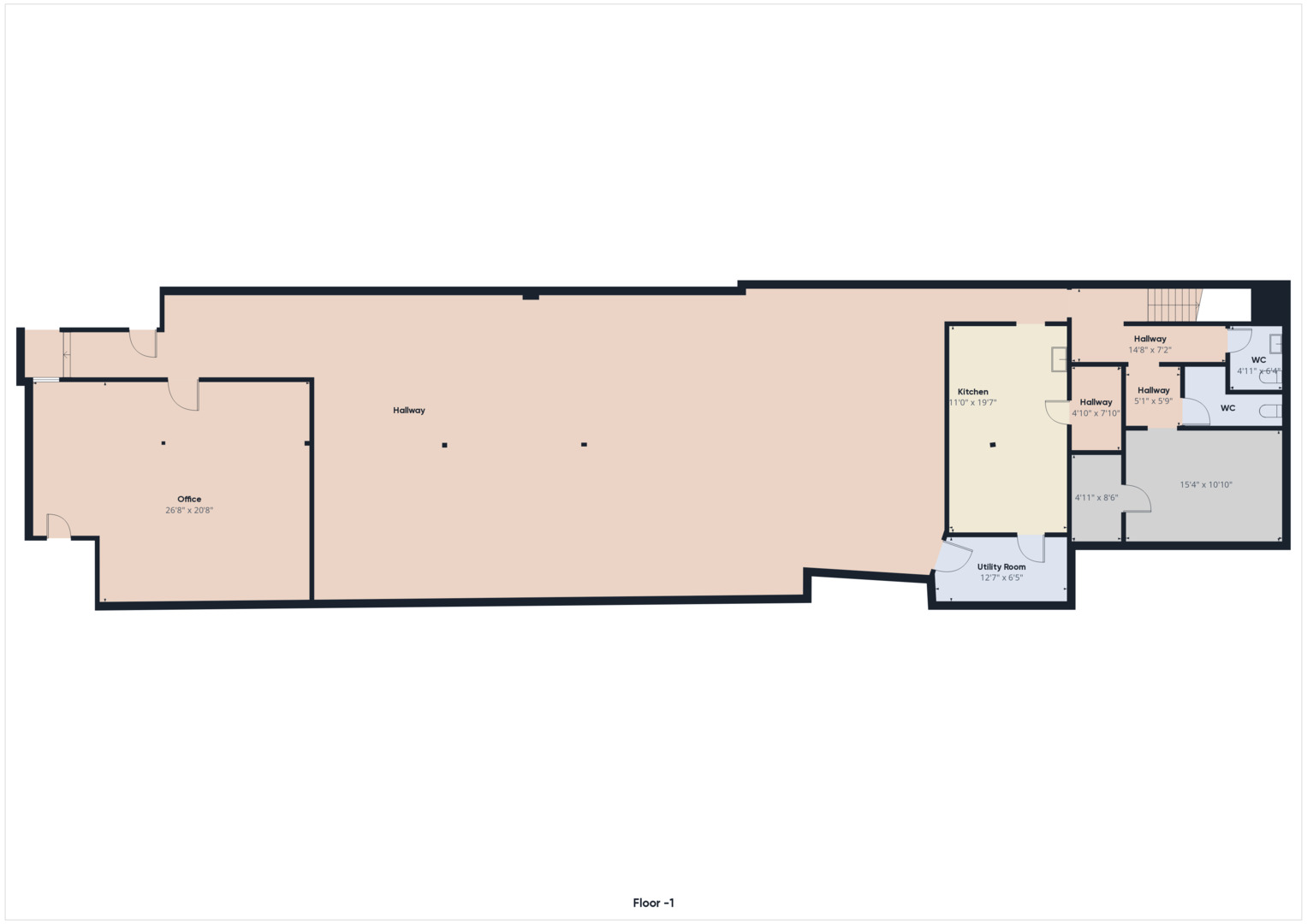
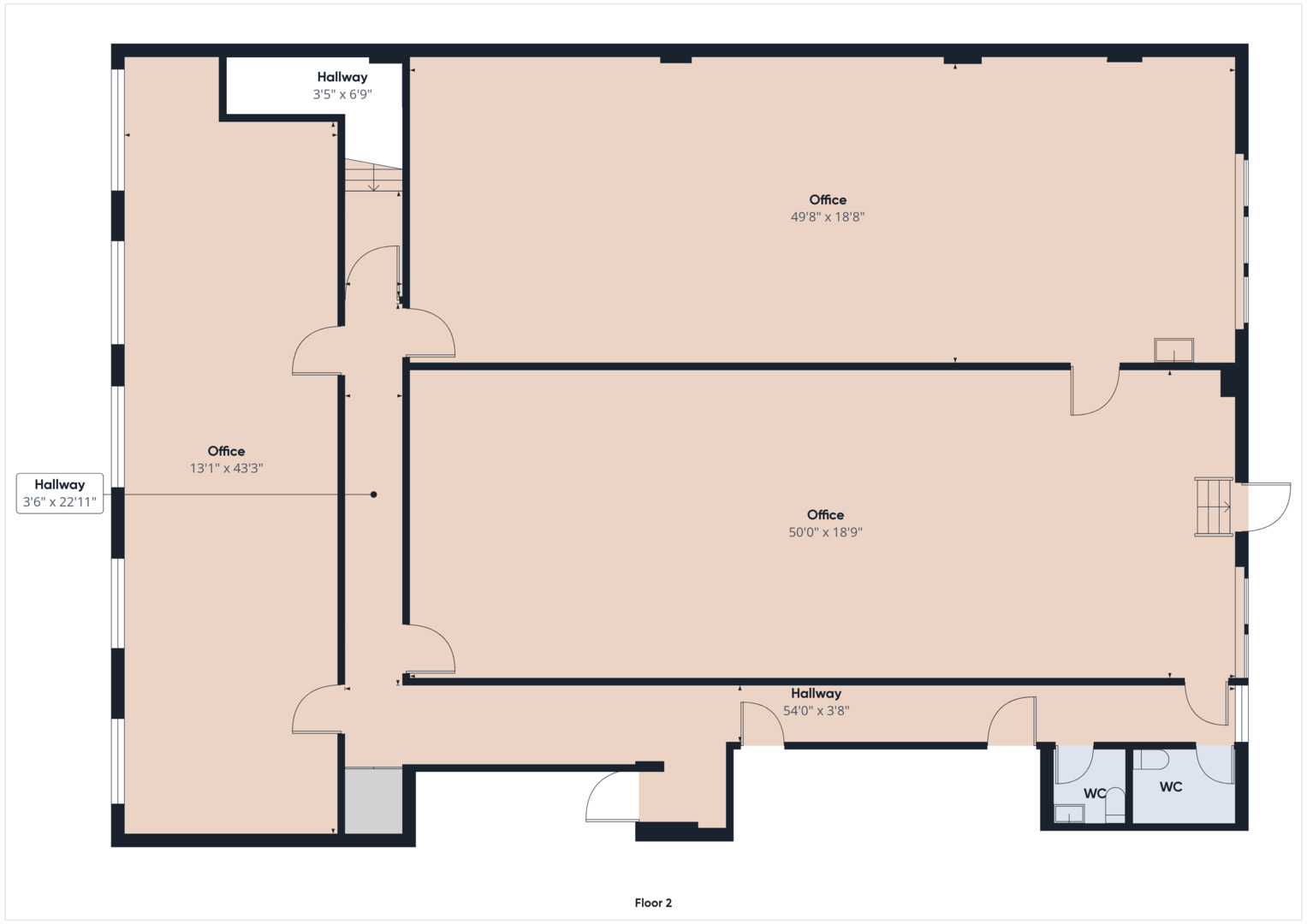
Amazing opportunity at the corner of N Pulaski and N Milwaukee in Chicago, IL. This property, with B3-2 zoning, offers the potential for a variety of uses, including retail, office, and medical, with the added benefit of apartment space permitted above the ground floor. For decades, this location has served as the home of the National College of Naprapathic Medicine, making it a well-established and trusted address. The space includes a welcoming reception area, multiple private offices, specialized treatment rooms, ample storage, and a kitchenette, making it ideal for healthcare services, office tenants, or other commercial ventures. The building provides great visibility from N Milwaukee Ave and is easily accessible by public transportation. Nearby amenities, such as retail stores and dining options, enhance the property's appeal. The property is ready for immediate occupancy and offers excellent potential for both retail and residential investment, making it a fantastic opportunity for businesses or developers looking for a prime location in a high-traffic area. Text or email the listing Brokers for showings and floor plans please.

Overview

Property Status
Sold
Lot Size
0.28 Acres
MLS ID
12452504
Property Type
Other
Year Built
1925

Features & Amenities

Stories
2
Air Conditioning
Central Air
Sales Price
$580,000

Downloads

3330-3332 N Milwaukee Avenue

Schedule a Tour

We would love to help you see this beautiful home! As a full-service brokerage, we can help you tour. Please submit an offer, and answer questions about the buying process.

Thank you

for your interest in 3330-3332 N Milwaukee Avenue, Chicago, IL 60641

3330-3332 N Milwaukee Avenue
Navigate

I'm Interested In

3330-3332 N Milwaukee Avenue

Featured Properties

  • 222-232 W Galena Boulevard Active Under Contract

    $2,700,000

    222-232 W Galena Boulevard, Aurora, IL 60506

    MLS #: 12584023

    • 15,939 Sq.Ft.
  • 8450 N Shermer Road For Sale

    $1,425,000

    8450 N Shermer Road, Niles, IL 60714

    MLS #: 12581091

    • 5,000 Sq.Ft.
  • 1412 W Diversey Parkway Unit: B For Sale

    $1,299,000

    Private Address

    • 4 Beds
    • 3 Baths
    • 3,100 Sq.Ft.
  • 1651 N Karlov Avenue For Sale

    $990,000

    1651 N Karlov Avenue, Chicago, IL 60639

    MLS #: 12544139

  • 950 N Michigan Avenue Unit: 37F For Sale

    $849,000

    950 N Michigan Avenue Unit: 3704, Chicago, IL 60611

    MLS #: 12486945

    • 3 Beds
    • 3 Baths
    • 1,850 Sq.Ft.
  • 4203 W Lawrence Avenue For Sale

    $675,000

    4203 W Lawrence Avenue, Chicago, IL 60630

    MLS #: 12544597

    • 2,700 Sq.Ft.
  • 2125 N STAVE Street Active Under Contract

    $650,000

    2125 N STAVE Street, Chicago, IL 60647

    MLS #: 12576660

    • 9 Beds
    • 4 Baths
  • 626 E Oakwood Boulevard Active Under Contract

    $650,000

    626 E Oakwood Boulevard, Chicago, IL 60653

    MLS #: 12531246

    • 4 Beds
    • 4 Baths
    • 3,200 Sq.Ft.
  • 1415 E 71st Place For Sale

    $625,000

    1415 E 71st Place, Chicago, IL 60619

    MLS #: 12551642

    • 9 Beds
    • 6 Baths
  • 15840 Overlook Lane For Sale

    $489,000

    15840 Overlook Lane, Huntley, IL 60142

    MLS #: 12553876

    • 4 Beds
    • 3 Baths
    • 2,169 Sq.Ft.
  • 8113 N Milwaukee Avenue For Sale

    $399,000

    8113 N Milwaukee Avenue, Niles, IL 60714

    MLS #: 12451802

    • 2,600 Sq.Ft.
  • 2719 W 94th Street For Sale

    $380,000

    2719 W 94th Street, Evergreen Park, IL 60805

    MLS #: 12459432

    • 3 Beds
    • 3 Baths
    • 1,596 Sq.Ft.
  • 2214 S Central Avenue For Sale

    $350,000

    2214 S Central Avenue, Cicero, IL 60804

    MLS #: 12346107

  • 723 Balmoral Avenue Active Under Contract

    $329,900

    723 Balmoral Avenue, Westchester, IL 60154

    MLS #: 12477255

    • 3 Beds
    • 2 Baths
    • 1,250 Sq.Ft.
  • 348 W 14th Street For Sale

    $299,900

    348 W 14th Street, Chicago Heights, IL 60411

    MLS #: 12490087

    • 4,829 Sq.Ft.
  • 814 Norfolk Avenue Active Under Contract

    $295,000

    814 Norfolk Avenue, Westchester, IL 60154

    MLS #: 12313360

    • 3 Beds
    • 2 Baths
    • 1,600 Sq.Ft.
  • 4312 Wenonah Avenue Active Under Contract

    $285,000

    4312 Wenonah Avenue, Stickney, IL 60402

    MLS #: 12537346

    • 2 Beds
    • 2 Baths
    • 942 Sq.Ft.
  • 138 Rice Avenue Active Under Contract

    $279,500

    Private Address

    • 3 Beds
    • 1 Bath
    • 989 Sq.Ft.
  • 7230 S Champlain Avenue For Sale

    $260,000

    Private Address

    • 4 Beds
    • 2 Baths
    • 959 Sq.Ft.
  • 7321 S South Shore Dr Unit: 7D For Sale

    $240,000

    7321 S South Shore Drive Unit: 7D, Chicago, IL 60649

    MLS #: 12495911

    • 2 Beds
    • 3 Baths
    • 1,700 Sq.Ft.
  • 10036 S Saint Lawrence Avenue Active Under Contract

    $231,500

    10036 S Saint Lawrence Avenue, Chicago, IL 60628

    • 3 Beds
    • 2 Baths
    • 890 Sq.Ft.
  • 3411 W 63rd Place Active Under Contract

    $215,000

    3411 W 63rd Place, Chicago, IL 60629

    MLS #: 12578609

    • 5 Beds
    • 2 Baths
    • 1,820 Sq.Ft.
  • 8639 S Burnham Avenue S For Sale

    $195,000

    8639 S Burnham Avenue, Chicago, IL 60617

    MLS #: 12342564

    • 5 Beds
    • 2 Baths
    • 1,296 Sq.Ft.
  • 15849 Greenwood Road Pending

    $72,500

    15849 Greenwood Road, South Holland, IL 60473

    MLS #: 12281045

    • 2 Beds
    • 1 Bath
    • 780 Sq.Ft.
  • 105 E 140th Court Active Under Contract

    $40,000

    105 E 140th Court, Riverdale, IL 60827

    MLS #: 12544938

    • 3 Beds
    • 1 Bath
    • 891 Sq.Ft.
  • 1401 E 71st Place For Sale

    $40,000

    1401 E 71st Place, Chicago, IL 60619

    MLS #: 12549354

  • 1217 E 53rd Street Unit: 2W Pending

    $3,200/mo

    1217 E 53rd Street Unit: 2W, Chicago, IL 60615

    MLS #: 12325520

    • 3 Beds
    • 2 Baths
    • 1,500 Sq.Ft.
  • 725 BRUMMEL Street Unit: 2 Pending

    $2,500/mo

    725 BRUMMEL Street Unit: 2, Evanston, IL 60202

    MLS #: 12563802

    • 3 Beds
    • 2 Baths
    • 1,800 Sq.Ft.
  • 1512 W Taylor Street Unit: 1 For Lease

    $37/mo

    1512 W Taylor Street Unit: 1, Chicago, IL 60607

    MLS #: 12500982

  • 6047 W Addison Street For Lease

    $24/mo

    6047 W Addison Street, Chicago, IL 60634

    MLS #: 12386953

    • 1,600 Sq.Ft.
View All

Follow Us On Instagram