Leave a Message

Thank you for your message. We will be in touch with you shortly.

Explore Our Properties

Property Description

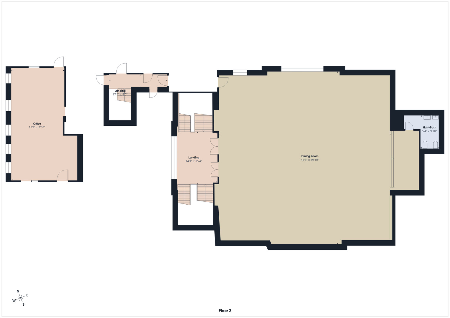
Welcome to 1651 N. Karlov Avenue - a cherished and beautifully maintained church nestled in the heart of West Humboldt Park. This special property offers a warm and inviting space for worship, fellowship, and community connection. The spacious sanctuary comfortably seats approximately 375 people and features striking stained-glass windows that fill the room with soft, inspiring light. Behind the scenes, you'll find four private offices and a 14x11 conference room, providing ideal spaces for ministry work, planning, and outreach. The large fellowship hall is perfect for weddings, celebrations, and community events, while the full commercial kitchen-complete with a large stove and refrigerator-makes hosting meals and gatherings easy and enjoyable. Adding exceptional value, the property includes an adjacent parsonage, offering a convenient and comfortable pastor's residence right next door. Additionally, a handicap lift was thoughtfully installed to ensure easy accessibility and comfort for all guests and members. Recent capital improvements include a new heating furnace, a new roof, and fresh tuckpointing throughout the exterior, offering peace of mind and reduced maintenance for years to come. Spacious on-site parking includes 8 dedicated spaces plus an additional 8 spaces along the side of the building, providing ample parking for services and events. Every corner of this property reflects years of care, dedication, and pride. More than a building, this church represents an opportunity to continue a legacy of faith, service, and community in one of Chicago's vibrant neighborhoods.

Overview

Property Status
For Sale
Lot Size
10,890 Sq.Ft.
MLS ID
12544139
Property Type
Other
Year Built
1925

Features & Amenities

Neighborhood
Chicago
Stories
2
Air Conditioning
Window Unit(s)
Substructure
Concrete Perimeter
Sales Price
$990,000
Zoning
OTHER

Downloads

1651 N Karlov Avenue

Schedule a Tour

We would love to help you see this beautiful home! As a full-service brokerage, we can help you tour. Please submit an offer, and answer questions about the buying process.

Thank you

for your interest in 1651 N Karlov Avenue, Chicago, IL 60639

1651 N Karlov Avenue
Navigate

Chicago

Explore Chicago

read more
  • A cherished and beautifully maintained church nestled in the heart of West Humboldt Park.

    Spacematch Inc

Mortgage Calculator

Estimate your monthly mortgage payment, including the principal and interest, property taxes, and HOA. Adjust the values to generate a more accurate rate.
$0,000 Your Payment 20 15 65
$0,000 Your Payment

I'm Interested In

1651 N Karlov Avenue

or

Featured Properties

  • 222-232 W Galena Boulevard Active Under Contract

    $2,700,000

    222-232 W Galena Boulevard, Aurora, IL 60506

    MLS #: 12584023

    • 15,939 Sq.Ft.
  • 8450 N Shermer Road Pending

    $1,425,000

    8450 N Shermer Road, Niles, IL 60714

    MLS #: 12581091

    • 5,000 Sq.Ft.
  • 1651 N Karlov Avenue For Sale

    $990,000

    1651 N Karlov Avenue, Chicago, IL 60639

    MLS #: 12544139

  • 950 N Michigan Avenue Unit: 37F For Sale

    $849,000

    950 N Michigan Avenue Unit: 3704, Chicago, IL 60611

    MLS #: 12486945

    • 3 Beds
    • 3 Baths
    • 1,850 Sq.Ft.
  • 130-140 Main Street N For Sale

    $820,000

    130-140 N Main Street, Wheaton, IL 60187

    MLS #: 12601311

    • 2,910 Sq.Ft.
  • 4203 W Lawrence Avenue For Sale

    $675,000

    4203 W Lawrence Avenue, Chicago, IL 60630

    MLS #: 12544597

    • 2,700 Sq.Ft.
  • 626 E Oakwood Boulevard Active Under Contract

    $650,000

    626 E Oakwood Boulevard, Chicago, IL 60653

    MLS #: 12531246

    • 4 Beds
    • 4 Baths
    • 3,200 Sq.Ft.
  • 1415 E 71st Place For Sale

    $595,000

    1415 E 71st Place, Chicago, IL 60619

    MLS #: 12551642

    • 9 Beds
    • 6 Baths
  • 1605 E Frederick Street Active Under Contract

    $535,000

    1605 E Frederick Street, Arlington Heights, IL 60004

    MLS #: 12585776

    • 3 Beds
    • 2 Baths
    • 1,518 Sq.Ft.
  • 15840 Overlook Lane For Sale

    $489,000

    15840 Overlook Lane, Huntley, IL 60142

    MLS #: 12553876

    • 4 Beds
    • 3 Baths
    • 2,169 Sq.Ft.
  • 10620 S Vincennes Avenue For Sale

    $450,000

    10620 S Vincennes Avenue, Chicago, IL 60643

    MLS #: 12622486

    • 4,000 Sq.Ft.
  • 8113 N Milwaukee Avenue For Sale

    $399,000

    8113 N Milwaukee Avenue, Niles, IL 60714

    • 2,600 Sq.Ft.
  • 2214 S Central Avenue For Sale

    $350,000

    2214 S Central Avenue, Cicero, IL 60804

    MLS #: 12346107

  • 318 E 74th Street For Sale

    $349,900

    318 E 74th Street, Chicago, IL 60619

    MLS #: 12573747

    • 15,000 Sq.Ft.
  • 11603 S Loomis Street For Sale

    $300,000

    11603 S Loomis Street, Chicago, IL 60643

    MLS #: 12575283

    • 4 Beds
    • 2 Baths
    • 1,400 Sq.Ft.
  • 348 W 14th Street For Sale

    $299,900

    348 W 14th Street, Chicago Heights, IL 60411

    MLS #: 12490087

    • 4,829 Sq.Ft.
  • 814 Norfolk Avenue Active Under Contract

    $295,000

    814 Norfolk Avenue, Westchester, IL 60154

    MLS #: 12313360

    • 3 Beds
    • 2 Baths
    • 1,600 Sq.Ft.
  • 7230 S Champlain Avenue For Sale

    $249,000

    Private Address

    MLS #: 12544626

    • 4 Beds
    • 2 Baths
    • 959 Sq.Ft.
  • 7321 S South Shore Dr Unit: 7D For Sale

    $234,000

    7321 S South Shore Drive Unit: 7D, Chicago, IL 60649

    MLS #: 12495911

    • 2 Beds
    • 3 Baths
    • 1,700 Sq.Ft.
  • 10036 S Saint Lawrence Avenue Active Under Contract

    $231,500

    10036 S Saint Lawrence Avenue, Chicago, IL 60628

    MLS #: 12513374

    • 3 Beds
    • 2 Baths
    • 890 Sq.Ft.
  • 3411 W 63rd Place Active Under Contract

    $215,000

    3411 W 63rd Place, Chicago, IL 60629

    MLS #: 12605103

    • 4 Beds
    • 2 Baths
  • 12628 S Union Avenue Active Under Contract

    $210,000

    12628 S Union Avenue, Chicago, IL 60628

    MLS #: 12617762

    • 4 Beds
    • 2 Baths
    • 960 Sq.Ft.
  • 7031 N Sheridan Road Unit: 2E Active Under Contract

    $205,000

    7031 N Sheridan Road Unit: 2E, Chicago, IL 60626

    MLS #: 12615217

    • 2 Beds
    • 1 Bath
    • 800 Sq.Ft.
  • 1722 N 36th Avenue For Sale

    $179,000

    1722 N 36th Avenue, Stone Park, IL 60165

    MLS #: 12613417

    • 3 Beds
    • 1 Bath
    • 924 Sq.Ft.
  • 15849 Greenwood Road Pending

    $72,500

    15849 Greenwood Road, South Holland, IL 60473

    MLS #: 12281045

    • 2 Beds
    • 1 Bath
    • 780 Sq.Ft.
  • 105 E 140th Court Active Under Contract

    $40,000

    105 E 140th Court, Riverdale, IL 60827

    MLS #: 12544938

    • 3 Beds
    • 1 Bath
    • 891 Sq.Ft.
  • 1401 E 71st Place For Sale

    $38,500

    1401 E 71st Place, Chicago, IL 60619

    MLS #: 12549354

  • 632 W Barry Avenue W Unit: GS For Lease

    $4,200/mo

    632 W Barry Avenue Unit: GS, Chicago, IL 60657

    MLS #: 12606840

    • 3 Beds
    • 3 Baths
    • 1,800 Sq.Ft.
  • 1217 E 53rd Street Unit: 2W Pending

    $3,200/mo

    1217 E 53rd Street Unit: 2W, Chicago, IL 60615

    MLS #: 12325520

    • 3 Beds
    • 2 Baths
    • 1,500 Sq.Ft.
  • 1512 W Taylor Street Unit: 1 For Lease

    $37/mo

    1512 W Taylor Street Unit: 1, Chicago, IL 60607

    MLS #: 12500982

  • 6047 W Addison Street For Lease

    $24/mo

    6047 W Addison Street, Chicago, IL 60634

    MLS #: 12386953

    • 1,600 Sq.Ft.
View All

Follow Us On Instagram